LOADING

31 Lyman Street Burton, New Brunswick E2V 0H9

4 Bedroom 3 Bathroom 2345 sqft
Bungalow Air Exchanger Baseboard Heaters Acreage Landscaped

$539,900

Welcome to 31 Lyman Street in Burton, where country charm meets modern comfort. Tucked away on a quiet, dead-end street with no through traffic, this walkout bungalow sits on a private, landscaped 2-acre lot. Enjoy the peace of rural living while being less than 10 minutes to Oromocto, about 25 minutes to Fredericton, and minutes from CFB Gagetown. Step up to the covered front porch and into a bright, open-concept main living area with 10-ft vaulted ceilings. The kitchen offers custom cabinetry and flows into the dining and living spaces, where patio doors lead to your two back decks, perfect for relaxing or entertaining. The attached double garage is conveniently located off the kitchen. Down the hall is a spacious primary suite featuring a custom tile, doorless shower in the ensuite,  2 more  bedrooms, and a main bath. Finished lower level with walkout, complete with 8-ft ceilings, features a large family room/theater room, an oversized 4th bedroom, a home office, spacious third bathroom, laundry area, and mechanical room. The backyard is level and suitable for parking an RV and space for an above ground pool. With its peaceful location, modern features, and thoughtful design, this home delivers the perfect blend of comfort, privacy, and convenience. (id:31036)

Property Details

MLS® Number NB128428
Property Type Single Family
Equipment Type Water Heater
Features Balcony/deck/patio
Rental Equipment Type Water Heater

Building

Bathroom Total 3
Bedrooms Above Ground 3
Bedrooms Below Ground 1
Bedrooms Total 4
Architectural Style Bungalow
Constructed Date 2013
Cooling Type Air Exchanger
Exterior Finish Vinyl
Flooring Type Ceramic, Vinyl, Wood
Foundation Type Concrete
Heating Fuel Electric
Heating Type Baseboard Heaters
Stories Total 1
Size Interior 2345 Sqft
Total Finished Area 2345 Sqft
Type House
Utility Water Well

Parking

Attached Garage
Garage

Land

Access Type Year-round Access, Public Road
Acreage Yes
Landscape Features Landscaped
Sewer Septic System
Size Irregular 8281
Size Total 8281 M2
Size Total Text 8281 M2

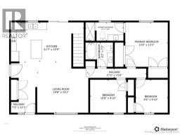
Rooms

Level Type Dimensions
Basement Family Room 12'10'' x 26'3''
Basement Bath (# Pieces 1-6) 8'10'' x 9'0''
Basement Laundry Room 6'7'' x 9'0''
Basement Bedroom 24'1'' x 13'4''
Basement Office 9'9'' x 9'0''
Main Level Bath (# Pieces 1-6) 8'2'' x 7'3''
Main Level Bedroom 10'8'' x 9'10''
Main Level Bedroom 9'6'' x 9'10''
Main Level Ensuite 11'3'' x 5'6''
Main Level Primary Bedroom 12'8'' x 13'3''
Main Level Foyer 7'3'' x 13'1''
Main Level Living Room 15'8'' x 13'1''
Main Level Kitchen 21'7'' x 13'9''

https://www.realtor.ca/real-estate/28986186/31-lyman-street-burton

Interested?

Contact us for more information


Generating Captcha

Deanna Mador
Salesperson

(506) 999-2309

RE/MAX East Coast Elite Realty
283 St. Mary's Street
Fredericton, New Brunswick E3A 2S5

(506) 452-9888
www.remaxfrederictonelite.ca/

Jonathan Fudge
Salesperson

(506) 440-6709

RE/MAX East Coast Elite Realty
283 St. Mary's Street
Fredericton, New Brunswick E3A 2S5

(506) 452-9888
www.remaxfrederictonelite.ca/

Your Favourites

 

No Favourites Found

 

You don't have permission to register