LOADING

356 Lower Durham Durham Bridge, New Brunswick E6C 1G7

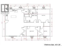
3 Bedroom 2 Bathroom 1288 sqft
Bungalow Heat Pump, Air Exchanger Baseboard Heaters, Heat Pump Acreage

$379,900

Wow, this spacious new bungalow is a breath of fresh air for the price! Situated on an oversized 1 acre lot with easy highway access, getting into the city is a breeze while still enjoying the peace and privacy of country living. Inside, you?ll love the open-concept layout connecting the kitchen, dining, and living areas, perfect for gatherings or everyday comfort. The kitchen features custom cabinets and a large island, with patio doors off the dining area leading to the backyard. The living room is bright and inviting with an XL window that lets the natural light pour in. Down the hall, you?ll find three bedrooms, including a generous primary suite at the back of the home with its own private ensuite complete with shower. The main bath is full including a one-piece tub/shower. Built for comfort and efficiency with extra insulation, an insulated subfloor, and a boarded-in roof, this brand-new home offers unbeatable value, especially on a lot this size. Affordable, move-in ready and just minutes to the city! (id:31036)

Property Details

MLS® Number NB129559
Property Type Single Family
Equipment Type Water Heater
Rental Equipment Type Water Heater

Building

Bathroom Total 2
Bedrooms Above Ground 3
Bedrooms Total 3
Architectural Style Bungalow
Constructed Date 2025
Cooling Type Heat Pump, Air Exchanger
Exterior Finish Vinyl
Flooring Type Laminate
Foundation Type Concrete, Slab
Heating Type Baseboard Heaters, Heat Pump
Stories Total 1
Size Interior 1288 Sqft
Total Finished Area 1288 Sqft
Utility Water Drilled Well, Well

Land

Access Type Year-round Access, Public Road
Acreage Yes
Sewer Septic System
Size Irregular 1
Size Total 1 Ac
Size Total Text 1 Ac

Rooms

Level Type Dimensions
Main Level Bath (# Pieces 1-6) 13'0'' x 8'4''
Main Level Bedroom 11'6'' x 9'6''
Main Level Bedroom 10'0'' x 9'6''
Main Level Ensuite 9'4'' x 5'4''
Main Level Primary Bedroom 13'0'' x 12'6''
Main Level Living Room 15'0'' x 19'2''
Main Level Kitchen 13'0'' x 19'2''

https://www.realtor.ca/real-estate/29060050/356-lower-durham-durham-bridge

Interested?

Contact us for more information


Generating Captcha

Jason Munn
Agent Manager

(506) 260-2605
https://www.youtube.com/embed/LI_wU2tx3bs
www.jasonmunnrealty.com/
www.facebook.com/jason.munn3?ref=tn_tnmn

RE/MAX East Coast Elite Realty
283 St. Mary's Street
Fredericton, New Brunswick E3A 2S5

(506) 452-9888
www.remaxfrederictonelite.ca/

Your Favourites

 

No Favourites Found

 

You don't have permission to register