LOADING

358 Lower Durham Durham Bridge, New Brunswick E6C 1G7

3 Bedroom 2 Bathroom 1120 sqft
Air Exchanger Baseboard Heaters Acreage

$309,000

On a budget? This brand-new custom-built slender home is your answer! Home ownership is possible with this affordable and stylish 3-bedroom, 2-bathroom home. Perfectly positioned on a 1-acre lot, this site-built home is just 20 minutes from uptown Fredericton, with convenient access via the new Route 8 bypass. Built with quality in mind, this home boasts 2x6 wall construction and sits on a solid concrete pier foundation, ensuring long-term stability. The cathedral ceilings in the open concept kitchen and living room create an airy, modern feel, while oversized windows fill the space with natural light. The thoughtfully designed kitchen features a functional island, perfect for meal prep or hosting guests, alongside a dining area open to the spacious living room. The layout provides privacy for the master suite, located at one end of the home, complete with its own ensuite bath with a tub/shower combo. Two additional bedrooms and a full bathroom are situated at the opposite end, ideal for family or guests. Why rent when you can own this beautiful new home for less than most two-bedroom apartments. Plus, enjoy the benefit of lower property taxes just outside the city. Don't miss your chance to call this stunning property your home. (id:31036)

Property Details

MLS® Number NB130176
Property Type Single Family
Equipment Type Water Heater
Rental Equipment Type Water Heater

Building

Bathroom Total 2
Bedrooms Above Ground 3
Bedrooms Total 3
Basement Type None
Constructed Date 2025
Cooling Type Air Exchanger
Exterior Finish Vinyl
Flooring Type Laminate
Foundation Type Concrete, Wood/piers
Heating Fuel Electric
Heating Type Baseboard Heaters
Size Interior 1120 Sqft
Total Finished Area 1120 Sqft
Type Manufactured Home
Utility Water Drilled Well, Well

Land

Access Type Year-round Access, Public Road
Acreage Yes
Sewer Septic System
Size Irregular 1
Size Total 1 Ac
Size Total Text 1 Ac

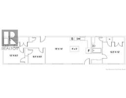
Rooms

Level Type Dimensions
Main Level Bath (# Pieces 1-6) 8'5'' x 6'0''
Main Level Bedroom 9'5'' x 8'5''
Main Level Bedroom 12'0'' x 8'5''
Main Level Ensuite 6'0'' x 9'0''
Main Level Primary Bedroom 12'0'' x 12'5''
Main Level Living Room 14'0'' x 15'0''
Main Level Kitchen 12'0'' x 9'0''

https://www.realtor.ca/real-estate/29108906/358-lower-durham-durham-bridge

Interested?

Contact us for more information


Generating Captcha

Jason Munn
Agent Manager

(506) 260-2605
https://www.youtube.com/embed/LI_wU2tx3bs
www.jasonmunnrealty.com/
www.facebook.com/jason.munn3?ref=tn_tnmn

RE/MAX East Coast Elite Realty
283 St. Mary's Street
Fredericton, New Brunswick E3A 2S5

(506) 452-9888
www.remaxfrederictonelite.ca/

Your Favourites

 

No Favourites Found

 

You don't have permission to register