LOADING

4 Grant Street Fredericton, New Brunswick E3A 4S5

3 Bedroom 2 Bathroom 1281 sqft
Bungalow Heat Pump, Air Exchanger Baseboard Heaters, Heat Pump

$449,900

Welcome to this stunning brand-new build on Frederictons Northside, crafted for those who appreciate modern comfort and the ease of true single-level living. Thoughtfully designed with style and functionality in mind, this home features 3 bedrooms and 2 full bathrooms, including a primary suite complete with a full ensuite and walk-in closet. Step inside to a bright, airy open-concept layout, where vaulted ceilings enhance the sense of space and natural light flows. The gorgeous kitchen features sleek quartz countertops, beautiful cabinetry, and a layout perfect for both everyday living and entertaining. With an attached garage offering direct entry into the home and a charming covered front porch enhancing its curb appeal, every detail has been considered for convenience and comfort. From its modern finishes to its low-maintenance design, this home is truly move-in ready and tailored for effortless, single-level living. Perfect for downsizers, busy professionals, or anyone seeking a fresh start in a thoughtfully built new home. (id:31036)

Property Details

MLS® Number NB130731
Property Type Single Family
Amenities Near By Recreation Nearby
Features Corner Site, Balcony/deck/patio

Building

Bathroom Total 2
Bedrooms Above Ground 3
Bedrooms Total 3
Architectural Style Bungalow
Constructed Date 2025
Cooling Type Heat Pump, Air Exchanger
Exterior Finish Stone, Vinyl
Flooring Type Vinyl
Foundation Type Concrete
Heating Fuel Electric
Heating Type Baseboard Heaters, Heat Pump
Stories Total 1
Size Interior 1281 Sqft
Total Finished Area 1281 Sqft
Utility Water Municipal Water

Parking

Attached Garage

Land

Access Type Year-round Access, Public Road
Acreage No
Land Amenities Recreation Nearby
Sewer Municipal Sewage System
Size Irregular 659
Size Total 659 M2
Size Total Text 659 M2

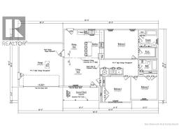
Rooms

Level Type Dimensions
Main Level Bedroom 10'2'' x 11'8''
Main Level Bedroom 11'2'' x 11'2''
Main Level Other 4'10'' x 8'2''
Main Level Ensuite 7'8'' x 8'2''
Main Level Primary Bedroom 12'10'' x 15'0''
Main Level Bath (# Pieces 1-6) 5'0'' x 8'2''
Main Level Living Room 13'6'' x 15'10''
Main Level Dining Room 11'6'' x 9'4''
Main Level Kitchen 11'6'' x 8'6''

https://www.realtor.ca/real-estate/29155145/4-grant-street-fredericton

Interested?

Contact us for more information


Generating Captcha

Miranda Wallace
Salesperson

1 (506) 449-9465

Exp Realty
Fredericton, New Brunswick E3B 2M5

Iris Davenport
Salesperson

(506) 425-4015

Exp Realty
Fredericton, New Brunswick E3B 2M5

Your Favourites

 

No Favourites Found

 

You don't have permission to register