LOADING

71 Des Scouts Memramcook, New Brunswick E4K 0B2

2 Bedroom 2 Bathroom 1178 sqft
Heat Pump Baseboard Heaters, Heat Pump Acreage Landscaped

$374,900

Sitting on a gorgeous 1.8-acre lot in the heart of the Memramcook Valley, this exceptional property offers the perfect blend of charm, space, and comfort everything you've been dreaming of. Step inside to discover a warm, open-concept layout with a beautiful wood-accented interior. The main floor features a spacious living room with soaring cathedral ceilings and a stunning propane fireplace, a bright dining area with patio doors leading to the outdoors, and a stylish kitchen complete with backsplash, stainless steel appliances, and a walk-in pantry. This level also includes a full bathroom and a comfortable bedroom. Upstairs, you'll find additional bedroom ( with lots of room to put 3 beds ) and a convenient half bath ideal for family or guests. Outside, enjoy the privacy of mature trees and the versatility of a large 22x24 detached garage perfect for storage, hobbies, or your workshop needs and is completed with a second smaller garage (14x20) perfect to park your ATV , Both interior of garage are finished Dont miss this rare opportunity to own a slice of paradise in Memramcook. Call today for more details! (id:31036)

Property Details

MLS® Number NB122419
Property Type Single Family
Features Level Lot, Balcony/deck/patio

Building

Bathroom Total 2
Bedrooms Above Ground 2
Bedrooms Total 2
Constructed Date 2015
Cooling Type Heat Pump
Exterior Finish Vinyl, Wood
Flooring Type Hardwood
Foundation Type Concrete, Wood/piers
Half Bath Total 1
Heating Fuel Electric, Propane
Heating Type Baseboard Heaters, Heat Pump
Stories Total 2
Size Interior 1178 Sqft
Total Finished Area 1178 Sqft
Type House
Utility Water Drilled Well, Well

Parking

Detached Garage
Garage

Land

Access Type Year-round Access, Public Road
Acreage Yes
Landscape Features Landscaped
Sewer Holding Tank
Size Irregular 1.8
Size Total 1.8 Ac
Size Total Text 1.8 Ac

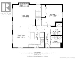
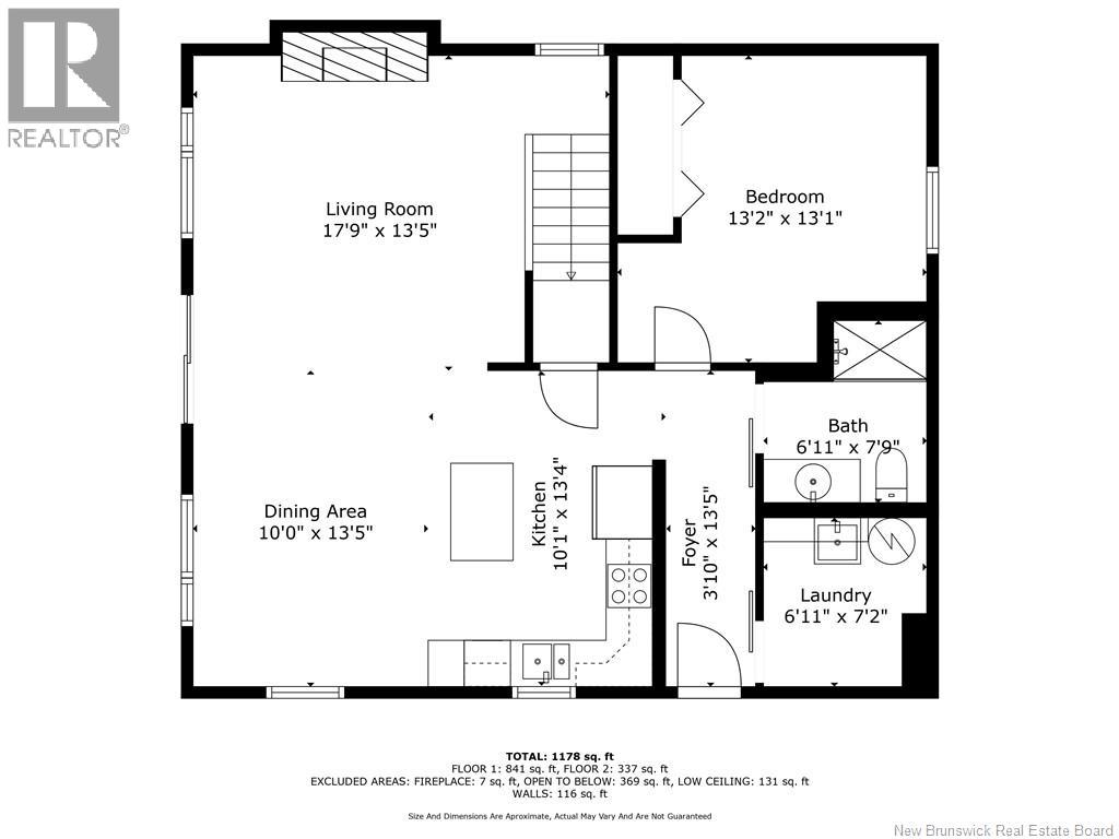
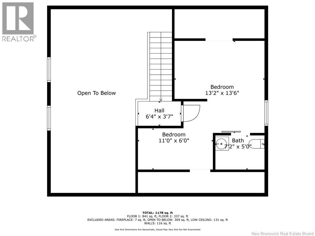
Rooms

Level Type Dimensions
Second Level 2pc Bathroom 7'2'' x 5'0''
Second Level Bedroom 13'2'' x 13'6''
Main Level Laundry Room 6'11'' x 7'2''
Main Level 3pc Bathroom 6'11'' x 7'9''
Main Level Foyer 3'1'' x 13'5''
Main Level Kitchen 10'1'' x 13'4''
Main Level Bedroom 13'2'' x 13'1''
Main Level Dining Room 10'0'' x 13'5''
Main Level Living Room 17'9'' x 13'5''
Unknown Other X

https://www.realtor.ca/real-estate/28573448/71-des-scouts-memramcook

Interested?

Contact us for more information


Generating Captcha

Nicole Leblanc
Salesperson

(506) 381-2192
https://nicoleleblancrealty.com/

Exit Realty Associates
260 Champlain St
Dieppe, New Brunswick E1A 1P3

(506) 382-3948
(506) 382-3946
www.exitmoncton.ca/
https://www.facebook.com/ExitMoncton/

Your Favourites

 

No Favourites Found

 

You don't have permission to register