LOADING

85 Pleasant Street Miramichi, New Brunswick E1V 1X8

1740 sqft
Heat Pump Heat Pump

$475,000

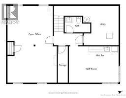
This two-level office building offers a modern, professional, and highly visible workspace in Newcastles charming, historic downtown business district. Located on a high-traffic street, close to all amenities and just minutes from the Miramichi River, this renovated (2021) property offers professional design and operational efficiency in a fully turnkey package. The upper level features three private offices, a storage/document area, a large open office space, and a spacious boardroom ideal for meetings, presentations, or collaborative work. The lower level includes open office space, a full kitchen and utility room. There are also two bathrooms, one on each level. Additional highlights include a contemporary exterior, paved parking, and plenty of windows throughout, creating a bright and inviting environment. Purpose-built for practical use with a modern aesthetic. Ideal for professional services, administrative offices, or creative businesses seeking a turnkey solution in a central location, this modern office space is ready to impress clients and support business growth from day one. (id:31036)

Business

Business Type Other
Business Sub Type Offices

Property Details

MLS® Number NB131068
Property Type Office
Amenities Near By Recreation Nearby, Shopping
Equipment Type Other
Features Visual Exposure
Rental Equipment Type Other
Structure None

Building

Constructed Date 1983
Cooling Type Heat Pump
Heating Fuel Electric
Heating Type Heat Pump
Size Interior 1740 Sqft
Total Finished Area 1740 Sqft

Land

Access Type Year-round Access, Public Road
Acreage No
Land Amenities Recreation Nearby, Shopping
Size Irregular 423
Size Total 423 M2
Size Total Text 423 M2
Zoning Description General Commercial

https://www.realtor.ca/real-estate/29171629/85-pleasant-street-miramichi

Interested?

Contact us for more information


Generating Captcha

Jennifer Stevens
Salesperson

(506) 625-1908

Keller Williams Capital Realty (M)
B-2436 King George Hwy
Miramichi, New Brunswick E1V 6V9

(506) 352-3733
(506) 352-3734

Your Favourites

 

No Favourites Found

 

You don't have permission to register