LOADING

73 Andre Dieppe, New Brunswick E1A 7C4

3 Bedroom 2 Bathroom 981 sqft
Heat Pump Baseboard Heaters, Heat Pump

$199,900

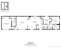
Situated in the desirable Domaine Dover Park in Dieppe, this beautiful three-bedroom, two-bathroom mini home offers plenty to its new owners. Upon arrival, you are welcomed into a bright entrance that leads into the open-concept kitchen and dining area, complete with a mini-split heat pump for year-round comfort. The spacious living room flows nicely through the home and leads to the primary bedroom, which features a double closet and a private four-piece ensuite bathroom. On the opposite end of the home, youll find two additional bedrooms, a full bathroom, and a convenient laundry areaperfect for added privacy and functionality. Outside, enjoy a large deck ideal for relaxing or entertaining, along with two storage sheds for all your extra needs. Lot rent is $460/month. Dont miss your opportunitycall today for more details! (id:31036)

Property Details

MLS® Number NB136124
Property Type Single Family
Structure Shed

Building

Bathroom Total 2
Bedrooms Above Ground 3
Bedrooms Total 3
Basement Type None
Constructed Date 1997
Cooling Type Heat Pump
Exterior Finish Vinyl
Flooring Type Laminate, Vinyl
Foundation Type Block
Heating Fuel Electric
Heating Type Baseboard Heaters, Heat Pump
Size Interior 981 Sqft
Total Finished Area 981 Sqft
Type House
Utility Water Municipal Water

Land

Acreage No
Sewer Municipal Sewage System

Rooms

Level Type Dimensions
Main Level Storage X
Main Level 4pc Bathroom X
Main Level Laundry Room X
Main Level Bedroom 11'0'' x 8'8''
Main Level Bedroom 7'4'' x 8'8''
Main Level Kitchen/dining Room 18'0'' x 14'7''
Main Level Living Room 15'1'' x 14'7''
Main Level Foyer 7'3'' x 3'1''
Main Level Primary Bedroom 11'2'' x 12'5''

https://www.realtor.ca/real-estate/29541902/73-andre-dieppe

Interested?

Contact us for more information


Generating Captcha

Nicole Leblanc
Salesperson

(506) 381-2192
https://nicoleleblancrealty.com/

Exit Realty Associates
260 Champlain St
Dieppe, New Brunswick E1A 1P3

(506) 382-3948
(506) 382-3946
www.exitmoncton.ca/
https://www.facebook.com/ExitMoncton/

Your Favourites

 

No Favourites Found

 

You don't have permission to register