LOADING

Lot 00-1 Berkley Road Riverview, New Brunswick E1B 2L4

3600 sqft
Heat Pump Baseboard Heaters, Heat Pump Landscaped

$1,200,000

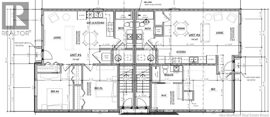
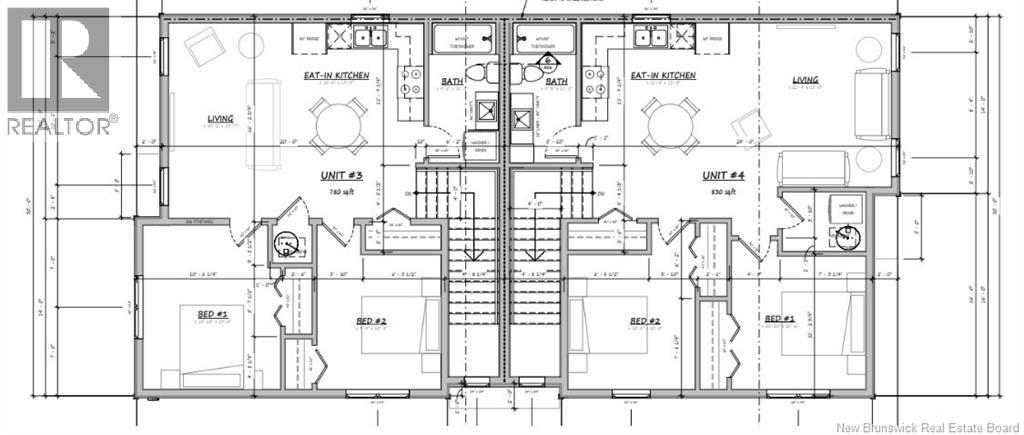
Welcome to an exceptional investment opportunity in the heart of Riverview. This brand new fourplex, scheduled for completion in Fall 2026, offers modern design, functional layouts, and a highly desirable location within walking distance to all levels of schooling. The main level features two thoughtfully designed units. The first is a spacious 780 sq. ft. one-bedroom apartment boasting an open-concept kitchen, dining, and living area. The primary bedroom includes a private ensuite and a large walk-in closet, while a second full bathroom with an integrated laundry area adds convenience and functionality. Also located on the main floor is a well-appointed two-bedroom unit offering an open-concept living space ideal for comfortable everyday living. This unit includes a full main bathroom with laundry hookups and two generously sized bedrooms. Upstairs, the property offers two additional two-bedroom apartments. Each unit features bright open-concept living areas designed for modern lifestyles, along with a full main bathroom equipped with laundry hookups for added tenant convenience. With four self-contained units, practical layouts, and a location close to schools, amenities, and daily essentials, this new construction fourplex presents an excellent opportunity for investors looking to expand their portfolio with a quality, low-maintenance property in one of Riverviews most desirable areas. The Seller is a licensed REALTOR® in the province of New Brunswick. (id:31036)

Property Details

MLS® Number NB135162
Property Type Multi-family

Building

Constructed Date 2026
Cooling Type Heat Pump
Exterior Finish Stone, Vinyl
Flooring Type Ceramic, Vinyl
Foundation Type Concrete
Heating Fuel Electric
Heating Type Baseboard Heaters, Heat Pump
Stories Total 2
Size Interior 3600 Sqft
Total Finished Area 3600 Sqft
Type Fourplex
Utility Water Municipal Water

Land

Access Type Year-round Access, Public Road
Acreage No
Landscape Features Landscaped
Sewer Municipal Sewage System
Size Irregular 966
Size Total 966 M2
Size Total Text 966 M2

https://www.realtor.ca/real-estate/29475913/lot-00-1-berkley-road-riverview

Interested?

Contact us for more information


Generating Captcha

Justin Mattatall
Salesperson

(506) 962-3948
(506) 389-3946
www.facebook.com/pages/Justin-Mattatall-Real-Estate-Associate/133629656705411
facebook.com/justinrealty

Keller Williams Capital Realty
150 Edmonton Avenue, Suite 4b
Moncton, New Brunswick E1C 3B9

(506) 383-2883
(506) 383-2885
www.kwmoncton.ca/

Jason Richard
Salesperson

(506) 381-1945

Keller Williams Capital Realty
150 Edmonton Avenue, Suite 4b
Moncton, New Brunswick E1C 3B9

(506) 383-2883
(506) 383-2885
www.kwmoncton.ca/

Your Favourites

 

No Favourites Found

 

You don't have permission to register